דף הבית » מודד מוסמך
מודד מוסמך
מחירים, סוגי מדידות, ותוצרים (PDF/DWG)
מודד מוסמך מעניק שירותי מדידה הן למגזר העסקי והן למגזר הפרטי החל מפרויקטים ציבוריים, תכנון אדריכלי ומדידות מבנים לצורכי ארנונה ותשתיות, ועד פתרון סכסוכי גבולות, שיפוצים ותוספות בנייה בנכסים פרטיים. טווח מחירי המדידות נע לרוב בין 1,500 ל־7,000 ₪ ומעלה, בהתאם לגודל הנכס ומורכבות העבודה.
אל תתפשרו על פחות מהטוב ביותר! בחרו מודד מוסמך בעל ניסיון ומוניטין מוכחים, שיספק לכם שירות מקצועי, אמין ומדויק. להצעת מחיר פנו אלינו!
מי יכול לספק שירותי מדידה מוסמכים בישראל?
רק מודד מוסמך, הרשום ובעל רישיון בתוקף מטעם המרכז למיפוי ישראל, רשאי לבצע מדידות מקצועיות וקבילות בישראל.
ההסמכה כוללת:
- הכשרה אקדמית בגיאודזיה (מתמטיקה, פיזיקה, קרטוגרפיה, פוטוגרמטריה, הנדסה וגיאולוגיה)
- לימודים אקדמיים בטכניון
- חידוש רישיון דו-שנתי
*מדידות שבוצעו על ידי גורם שאינו מודד מוסמך אינן קבילות מול רשויות, טאבו או בית משפט.
כמה עולה שירות מודד מוסמך?
| סוג מדידה | מחיר ממוצע (לפני מע"מ) |
|---|---|
| מדידות ארנונה לדירה בת 2-3 חדרים | 1,500-3,500 ₪ |
| מדידות ארנונה לדירה בת 4-5 חדרים | 3,000-4,500 ₪ |
| מדידות בית לפני שיפוץ לדירה בת 4-5 חדרים | 1,800-3,500 ₪ |
| מדידות בית לפני שיפוץ לבתים פרטיים | כ 7,000 ₪ |
| מדידות שטחים וקרקעיות | 4,500-3,000 ₪ |
| מדידות דירה לצורך קניה או מכירה | 2,000-3,000 ₪ |
| מדידות להיתר בניה | 1,500-7,000 ₪ |
מה משפיע על המחיר?
בין הגורמים המשפיעים על מחיר מודד מוסמך:
- השירות הנדרש- סוג המדידה ומטרותיה
- גודל הנכס
- מבנה הנכס- קיים הבדל בין מדידת דירה חד מפלסית לבית פרטי בן שתי קומות או יותר.
- נגישות- הנגישות לנכס לעומת מגבלות נגישות המצריכות פתרונות ושימוש בטכנולוגיות מתקדמות.
- טכנולוגיה- מדידות הנדסיות מתבססות על טכנולוגיות שונות, בניהן מודדים בלייזר המחשבים מרחקים בין עצמים וקירות באמצעות קרן לייזר מדויקת, מדידות באמצעות רחפנים וטכנולוגיות נוספות. הצורך בטכנולוגיה ליישום המדידה הנדרשת עבור צרכי הלקוח תשפיע מטבע הדברים על העלות.
- ניסיון, מוניטין ורמת שירות של חברת מדידות.
בנוסף, ישנם מקרים שבהם המודד עשוי לגבות תוספת תשלום עבור שירותים נוספים, כגון:
- הכנת תוכנית מדידה
- קבלת אישור מהרשויות
- שירותי שרטוטים
איזה שירות מדידה אתם צריכים?
מדידות קרקעיות- מדידות הנדסיות של קרקעות ומבנים
מודד מוסמך מבצע מדידות שונות בהתאם למה שצריך להשיג: תכנון ורישוי, רישום בטאבו, בקרה בשטח, חיובי ארנונה, או יישוב מחלוקות על גבולות. להלן השירותים המרכזיים:
- רישום פרצלציה וחלוקת קרקע – מדידה וחלוקה מדויקת של מגרש בין בעלים לצורך רישום זכויות.
- מדידות קרקע לתכנון ורישוי – קביעת גבולות, שטחי בנייה ותנאי שטח (תוואי, מפלסים, תשתיות/עצמים) כבסיס לתכנון אדריכלי ולהגשות.
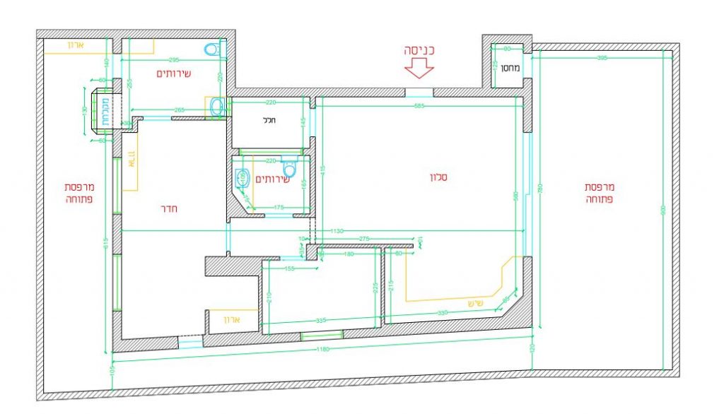
- מדידת דירות ונכסים בנויים – בדיקת שטח בפועל לצורכי מכר/שכירות, התאמה לטאבו, מסים, ארנונה והיתרי הרחבה.
- מדידת מגרש לפני בנייה ומיצוי זכויות – מדידה מדויקת לקבלת היתר בנייה, סימון גבולות או תיקון גבולות לפי תשריטים והחקיקה הרלוונטית.
- מדידות לטופס 4 – מדידת המבנה לאחר סיום הבנייה לצורך אישור אכלוס.
- מפות טופוגרפיות – מיפוי תוואי השטח: גבהים, שיפועים, גבולות, תכסית, תשתיות ומעברי מים – ברמת דיוק המשמשת לתכנון וביצוע.
- תשריט בית משותף – תשריט לצורך רישום/עדכון בית משותף והצגת חלוקה, שימושים ויחידות לפי דרישות הרשות.
- תכנית לצרכי רישום (תצ״ר) – תכנית רישום שמגדירה חלוקה לגושים/חלקות וזכויות, ונדרשת לרישום בטאבו ומימוש זכויות.
- מדידות מגרשים וחלוקת בית משותף בפיקוח ביצוע – מדידות בשלבים שונים במהלך הבנייה להתאמה להיתרים ולתכניות ולבקרת ביצוע.
- פתרון סכסוכי גבולות – קביעת גבולות מדויקת וסיוע מקצועי במחלוקות בין שכנים.
- מדידות ארנונה והשגה – מדידה חדשה ומדויקת של הנכס + תשריט לפי חלוקה לאזורים, לצורך בדיקת חיוב וערעור במידת הצורך.
- אורתופוטו וצילומי אוויר – צילום מיושר ומדויק (אורתופוטו) בשילוב עיבוד מתקדם לצרכי מדידה, תכנון והפקת תרשימים ותכניות.
מדידות ימיות
מדידות ימיות למיפוי עומק וקרקע ימית, איתור עצמים, לצורך העברת תשתיות תקשורת ואחרות.
- כתיבת מפות ימיות המתבססות על מדידות מתקדמות בשטחים ימיים, לרבות אגמים, נהרות, נחלים, מרחבי מים מלאכותיים, ימה טבעית ואחרים.
- כתיבת מפות ימיות תחת פרמטרים קבועים בתקן S-44.
- מדידת מים ריבוניים טריטוריאליים ומים כלכליים.
גאוטופ הנדסה - מודדים מוסמכים - ליווי פרויקטים מלא
גאוטופ הינה חברת מדידות מספקת מגוון שירותי מדידה גאודטית באמצעות צוות מודדים מוסמכים ומכשירי מדידה והנדסה מתקדמים עבור שטחים המיועדים לבנייה או פיתוח. ליווי פרויקט באמצעות מודד מוסמך הוא חיוני לאורך כל תהליך הבנייה, החל משלב התכנון ועד לשלב הביצוע והרישום.
אנו מספקים לכם מודד מוסמך אשר ילווה אתכם לאורך כל הפרויקט:
- שלב התכנון: הבאת השטח אל שולחן השרטוט, מודד מוסמך מבצע מדידות שטח מדויקות ויוצר מפה טופוגרפית דיגיטלית. מפה זו כוללת נתונים כמו גבהים, שיפועים, מיקום קווי בניין ועוד. לאחר מכן צוות המומחים של החברה מנתח את נתוני המדידה ומפיק מהם תוכנית עבודה ממוחשבת. תוכנית זו משמשת כבסיס לתכנון הפרויקט כולו.
- שלב הביצוע: סימון שטח: חברת המדידות מבצעת סימונים בשטח בהתאם לתוכנית הבנייה. סימונים אלו מבטיחים שהפרויקט יבוצע בצורה מדויקת ותואמת את התכנון.צוות המודדים מבצע פיקוח ובקרה לאורך כל שלבי הביצוע. הם מוודאים שהעבודות מתבצעות בהתאם לתוכנית ולתקנים הנדרשים.
- שלב הרישום: מדידות לצורך רישום לאחר סיום הבנייה, מודד מוסמך מבצע מדידות לצורך רישום הנכס בטאבו. מדידות אלו מבטיחות שהנכס רשום בצורה מדויקת ותואמת את המצב בפועל.
איך מקבלים את תוצאות המדידה ומתי?
- Pdf שאפשר לפתוח ולצפות בכל מחשב או פלאפון
- Dwg autocad שכל אדריכל או מהנדס יכול לצפות ולערוך.
- מודל תלת מימד וענן נקודות באמצעות סריקות לייזר 3 מימד.
את התוצאות תקבלו בין 2-3 ימי עסקים לאחר סיום המדידה בשטח.
איך לבחור מודד מוסמך?
שירותי מדידה הם בעלי משמעות משפטית, תכנונית וכלכלית, ולכן חשוב לבחור מודד מוסמך בעל רישיון בתוקף מטעם המרכז למיפוי ישראל. רק מדידות שבוצעו על-ידי מודד מוסמך קבילות מול רשויות, טאבו ובתי משפט. בעת הבחירה מומלץ לוודא ניסיון בתחום הרלוונטי, שימוש בציוד מדידה מתקדם, המלצות מוכחות והיכרות עם דרישות הרשות המקומית, במיוחד במדידות ארנונה וגבולות.
למה להזמין שירות מודד מוסמך מגאוטופ הנדסה?
חברת גאוטופ היא חברת מדידות מקצועית, בעלת ניסיון רב שנים וצוות מודדים מוסמכים ראשונים בתחומם. החברה מקפידה על עדכנות מקצועית ושימוש במיטב הטכנולוגיות, לביצוע כל עבודות המדידה המתקדמות, החל ממדידות קרקע ומבנים, מדידות אוויריות ומדידות ימיות, עבור מגוון סוגי לקוחות מן המגזר העסקי, המוסדי, רשויות מקומיות ולקוחות פרטיים.
פרוייקטים אחרונים













שאלות נפוצות ותשובות
האם כל מודד יכול לבצע מדידות?
לא. רק מודד מוסמך בעל רישיון בתוקף רשאי לבצע מדידות קבילות.
האם מדידה קבילה לערעור ארנונה?
כן, כאשר מבוצעת ע"י מודד מוסמך ובהתאם לתקנות העירייה.
מה ההבדל בין מודד מוסמך להנדסאי מדידות?
מודד מוסמך הוא בעל רישיון רשמי לביצוע מדידות והפקת תוצרים קבילים מול רשויות (טאבו/ועדות/עיריות/בתי משפט), בהתאם לדרישות הרגולציה בישראל.
הנדסאי מדידות הוא בעל הכשרה מקצועית בתחום המדידות, ולעיתים עובד כחלק מצוות מדידה או מבצע עבודות מדידה בשטח—אך עצם ההכשרה כהנדסאי אינה תחליף לרישיון של מודד מוסמך כאשר נדרש תוצר קביל והגשה לרשויות.
אילו מסמכים צריך מודד מוסמך להוציא בסיום המדידה?
בסיום מדידה, מודד מוסמך מספק את התוצרים בהתאם לצורך שלשמו הוזמנה המדידה. לרוב מדובר באחד או יותר מהבאים:
- קובץ PDF תשריט/מפה לצפייה והגשה
- קובץ DWG (AutoCAD) לשימוש אדריכלים/מהנדסים ולתכנון
- תשריט/מפה טופוגרפית (מצבית) לתכנון, רישוי והגשות
- תכנית לצרכי רישום (תצ״ר) / תשריטי רישום כאשר מדובר ברישום בטאבו/חלוקה/בית משותף
- תשריט ארנונה – כולל חלוקה לאזורים וחישוב שטחים לפי כללי הרשות
- מודל תלת־ממד / ענן נקודות (אם בוצעה סריקת לייזר/רחפן)
אזורי שירות
שירותים נוספים






